typeA

幅広い用途に対応できるよう設計された、シンプルかつ実用的なコンテナ型製品です。
無駄をそぎ落とした構造でありながら、居住空間・店舗・オフィスなど、多彩なシーンで柔軟にご活用いただけます。
製品仕様は日本の環境に最適化した特別仕様で設計しておりますが、更にお客様の細かな設計希望にもお応えできるよう、レイアウトや設備の変更など個別カスタマイズにも対応しています。
 
また、メーカー品質管理をベースに、JIS規格やISO認証に準拠した高い品質基準を採用。加えて、弊社社員が現地メーカーに常駐し、生産工程の各段階で厳しいチェックを行うことで、安定した品質と安心をお届けできる体制を整えています。
お客様に長く安心してご利用いただける製品づくりを徹底して取り組んでいます。

typeA-8

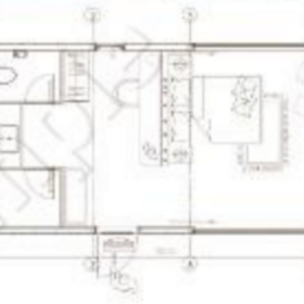
■寸法
面積:32㎡
長さ:8m
幅:4m
高さ:3.3m
■機能
1bedroom/1livingroom/1bathroom

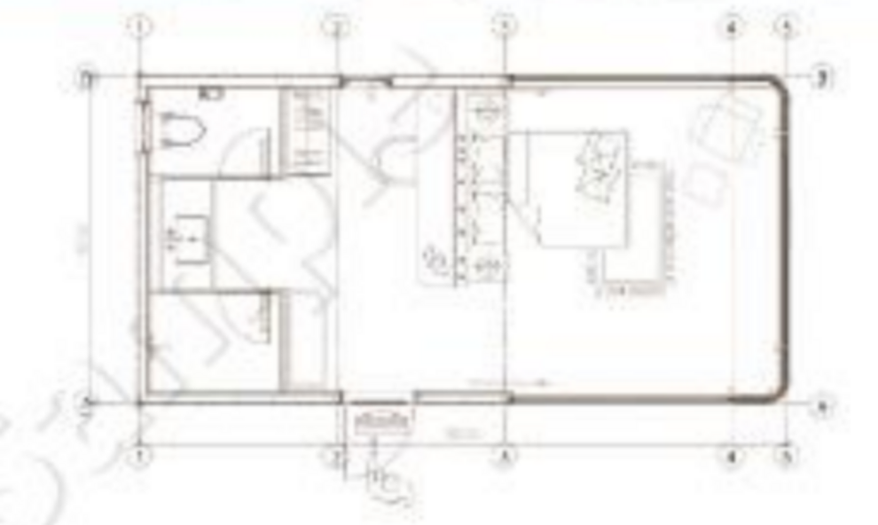
typeA-10

■寸法
面積:40㎡
長さ:10m
幅:4m
高さ:3.3m
■機能
1bedroom/1livingroom/1bathroom

Option

  • バスルーム
    TOTO・INAXなど国内メーカー品に変更できます
  • トイレ
    TOTO・INAXなど国内メーカー品に変更できます
  • エアコン
    国内メーカー品に変更が可能です
  • アンテナ
    アンテナを付けるとTV視聴が可能です
    ※一部地域では視聴できない場合があります

  • 内装に畳を使用することもできます
  • トレーラーハウス
    国内産シャーシと合わせたトレーラーハウスとして設計可能です
  • 配線器具
    国内メーカーの配線器具に変更できます

Gallery

CONTACT お問い合わせ・
資料請求はコチラ

ご希望の設置場所や用途をお聞かせください。
最適なプランをご提案します。
全国対応/法人・個人問わず
ご相談いただけます。